8
        St. Ann's Hill, London, SW18
Let Agreed             
            £2,300 PCM
        
                2 bedrooms, 1 bathrooms, 1 receptions
            
            
        Summary:
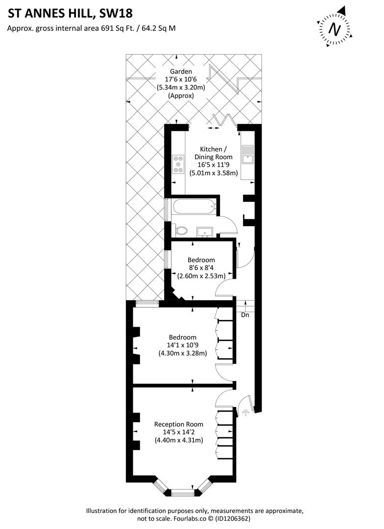
Two bedroom large ground floor garden flat which is fantastically located in central Wandsworth close to Wandsworth Common, central shopping areas, Northcote Road and Clapham Junction. Spread across the entire ground floor of a lovely Victorian terraced house, the flat is in immaculate internal order Upon entering you are greeted with an inviting corridor that links the front reception room with the kitchen at the rear. The reception/living room is large, bright, well decorated and retains some great period features; there are also built in shelving and beautiful original exposed floorboards. Further down the corridor is the main double bedroom which expands to 14’1” by 10’9” and a very sizeable second bedroom. Behind the bedrooms is a large family bathroom and doors to a very spacious, incredibly modern and well laid out kitchen/dining room that has sliding doors onto a private decked south westerly facing rear garden.St Ann’s Hill is located within a 10 minute walk of Wandsworth town Station and also has easy access routes to Clapham Junction, Putney, Earlsfield and Tooting. The area is surrounded by excellent primary schools and a wealth of bars, restaurants and shops. Available immediately
Key Features:
- Ground floor garden flat
- Two bedrooms
- Large reception room
- Built in wardrobes
- High spec bathroom
- Kitchen with dining space
- Bi fold doors onto a south westerly private garden
Full Details:
Viewing & Disclaimer:
Please contact us on 0208 871 1729 if you wish to arrange a viewing appointment for this property, or require further information.
Energy Performance Certificate
Click here to view the Energy Efficiency Rating and Environmental Impact Rating for this property.
C Scott & Co - SW18 endeavour to maintain accurate depictions of properties in Virtual Tours, Floor Plans and descriptions, however, these are intended only as a guide and purchasers must satisfy themselves by personal inspection.
 
                        